Bienvenue au Cambridge. Au cœur de l’avenue Shakespeare, une petite rue élégante entre le quartier des Fleurs et celui des Musiciens, ce beau 4 pièces est une véritable perle.
Cet appartement familial de 93,03 m² est situé au 6ème et avant-dernier étage d’un immeuble de standing des années 60. Il combine luminosité, volumes généreux, profonde terrasse, et vue sur la ville.
En exclusivité, cet appartement vous ouvre ses portes et ses perspectives.
😍 Votre cocon en hauteur
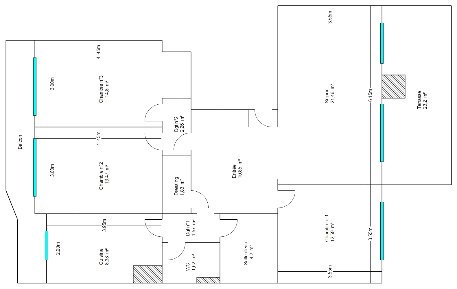
Dès l’entrée, un bel espace central vous accueille avec un dressing bien aménagé et un placard, et distribue les pièces principales.
Côté Ouest, le séjour de plus de 21m², baigné de lumière, s’ouvre sur une magnifique terrasse à ciel ouvert de 23,20 m². Ici, les fins de journée prennent une autre dimension, imaginez les moments en famille ou les soirées entre amis.
🏡 Un chez-vous spacieux et confortable
Côté nuit, trois belles chambres parquetées offrent confort et tranquillité, dont deux avec penderies intégrées. Une salle de douche fonctionnelle, un wc indépendant, ainsi qu’une cuisine équipée bien entretenue, prête à évoluer selon vos envies, complètent l’ensemble.
Côté Est 🌅, la lumière s’invite dès le matin par le balcon de 7m² qui dévoile une jolie vue dégagée sur la ville et les montagnes Les prestations sont à la hauteur, avec un DPE classé C : la climatisation, la porte blindée, le double vitrage, et le chauffage collectif assurent votre confort au quotidien. Une cave et un garage en sous-sol viennent parfaire ce bien.
🎨 Une opportunité à Nice
L’appartement est bien entretenu, même s’il mérite une remise au goût du jour pour en faire votre futur chez-vous. Les écoles, commerces et transports sont à proximité, pour une vie de quartier pratique et agréable.
👉 Que vous soyez une jeune famille à la recherche d’un bel espace de vie ou un couple de retraités souhaitant confort et emplacement privilégié, ce bien coche beaucoup de cases … et vous attend.
Les belles opportunités à Nice ne restent pas longtemps sur le marché. Contactez-moi dès maintenant pour organiser une visite privée.
😎 Agence Istra – Serge Cajna
🗺️ 7 Boulevard François Grosso 06000 Nice
📞 06.61.17.2000 | ✉️ agence@istra.fr
www.istra.fr
Bien soumis au statut de la copropriété (total de 79 lots). Provisions sur charges : 353 € / mois (fonds ALUR inclus). Taxe foncière 2.130 euros. DPE : Classe C.
👉 Cet appartement ne correspond pas exactement à vos critères ? Pas de stress ! Confiez-nous votre recherche : l’agence Istra met plus de 30 ans d’expérience à votre service dans l’immobilier à Nice.












